Almere

Fugaplantsoen 13

Omschrijving

Let op, Schouten Barmentlo Makelaars biedt deze woning aan met een bieden vanaf-prijs; Bijzonderheden: - Goed onderhouden tussenwoning; - Ideale gezinswoning met 4 goede slaapkamers; - Gedeeltelijk voorzien van kunststof kozijnen met HR++ glas; - Moderne keuken uit 2019; - Begane grond en 1e verdieping zijn voorzien van gladgestuukte; - Zonnige achtertuin (2020) met overkapping gelegen op het zuidwesten; - Oplevering in overleg. De wijk staat bekend om zijn groene uitstraling, ruime opzet en d...

Lees meer

Kenmerken

Status
Verkocht
Koopprijs
€ 450.000,- k.k.
Oppervlakte
130 m² / 122 m²
Bouwjaar
1992
Bekijk meer kenmerken

Omschrijving

Let op, Schouten Barmentlo Makelaars biedt deze woning aan met een bieden vanaf-prijs;

Bijzonderheden:
- Goed onderhouden tussenwoning;
- Ideale gezinswoning met 4 goede slaapkamers;
- Gedeeltelijk voorzien van kunststof kozijnen met HR++ glas;
- Moderne keuken uit 2019;
- Begane grond en 1e verdieping zijn voorzien van gladgestuukte;
- Zonnige achtertuin (2020) met overkapping gelegen op het zuidwesten;
- Oplevering in overleg.

De wijk staat bekend om zijn groene uitstraling, ruime opzet en de aanwezigheid van diverse voorzieningen op korte afstand.
Op loopafstand vindt u een Plus-supermarkt (ca. 300 m) en een Albert Heijn (ca. 1 km), ideaal voor dagelijkse boodschappen, de basisschool Crescendo ligt op korte afstand, en diverse kinderopvanglocaties zijn eveneens nabij. Het treinstation Almere Muziekwijk en het overige OV is op zeer korte afstand van de woning. De wijk is rijk aan groen, met parken en waterpartijen in de directe omgeving, perfect voor wandelingen en recreatie.
De woning is goed bereikbaar via de uitvalswegen naar de A6 en A27, en het centrum van Almere-Stad is op korte afstand gelegen. Dit maakt de locatie zowel rustig als centraal.

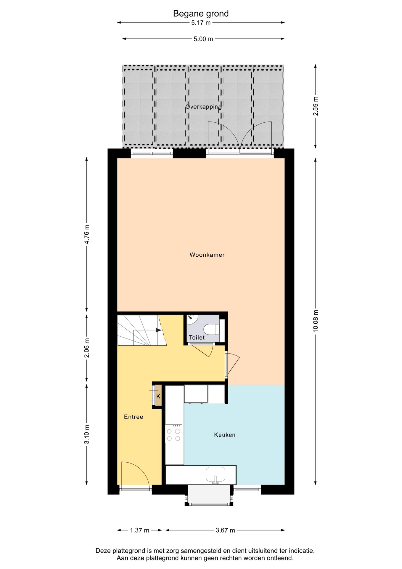
In de hal vindt u ruimte voor jassen en schoenen, de meterkast (met o.a. glasvezelaansluiting), het toilet met fonteintje en de trapopgang naar de eerste verdieping. Vanuit de hal bereikt u de ruime woonkamer via een glazen tussendeur, welke is gesitueerd aan de achterzijde van de woning. Er is voldoende ruimte voor het plaatsen van een ruime zithoek. De wanden zijn keurig gladgestuukte en er is een nette laminaatvloer aanwezig. Vanuit de woonkamer bereikt u middels de openslaande deuren (2006, HR++) de zonnige achtertuin.
Aan de voorzijde bevindt zich een de moderne open keuken met ruimte voor een eethoek. De open keuken is eind 2019 geplaatst en is in een U-vorm met een moderne composiet aanrechtblad. De keuken is voorzien van een Quooker en inbouwapparatuur van NEFF met o.a. een inductiekookplaat met daarboven een afzuigkap, een oven, een vaatwasser en een koel-/vriescombinatie. De kasten beschikken over een push-to-open systeem en hebben in beide hoeken een draaicarrousel voor extra gemak.

Tuin:
De woning beschikt over een fijne tuin op het zuidwesten, waardoor u de hele dag van de zon kunt genieten. De tuin is in 2020 keurig aangelegd en is zeer verzorgd! Er is een mooie overkapping geplaatst met verlichting waardoor u heerlijk buiten kunt zitten. De tuin is betegeld en beschikt over grote borders met groen. De tuin is volledig omheind met schuttingen, wat zorgt voor privacy en veiligheid.
Achterin de tuin vindt u een stenen berging, ideaal voor het opbergen van tuingereedschap, fietsen of buitenmeubilair. Dankzij het achterom is de tuin makkelijk toegankelijk. Voor extra gemak is er een buitenkraan aanwezig.

Eerste verdieping
Via de vaste trap bereikt u de overloop die alle vertrekken met elkaar verbindt. Op deze verdieping bevinden zich 3 slaapkamers waarvan de 1 slaapkamer aan de voorzijde en 2 slaapkamers achter. De slaapkamers zijn van goed formaat en zijn variërend in grootte. Alle kamers zijn voorzien van gladgestuukte wanden en beschikken over een laminaatvloer. In het midden is de badkamer gesitueerd welke tot aan het plafond betegeld is. De badkamer is voorzien van een 2e toilet, een wastafel en een zeer ruime inloop douche met een regen-/ en handdouche en massagestralen. Er is een bankje met daarboven de handdoekradiator.

Zolder
De zolderverdieping is afgesloten met een deur en bereikbaar via een vaste trap en biedt volop mogelijkheden. Er is een laminaatvloer en er zijn 2 veluxdakramen. Op zolder vindt u de aansluiting voor de wasmachine. Achter het grote knieschot is volop bergruimte aanwezig!

Alhoewel zorgvuldig samengesteld, kunnen er aan deze tekst geen rechten worden ontleend. Wij staan dan ook niet in voor de juistheid en volledigheid van de getoonde gegevens.

Overdracht
Status
Verkocht
Vraagprijs
€ 450.000,-
Aanvaarding
In overleg
Bouwvorm
Soort object
Woonhuis
Soort
Eengezinswoning
Soort dak
Lessenaardak
Type woning
Tussenwoning
Bouwjaar
1992
Bouwvorm
Bestaande bouw
Ligging
Aan rustige weg, In woonwijk
Oppervlaktes en inhoud
Woonoppervlakte
130 m2
Perceel oppervlakte
122 m2
Externe bergruimte
6 m2
Inhoud
451 m3
Aantal kamers
5
Aantal slaapkamers
4
Tuin
Tuinen
Achtertuin, Voortuin
Hoofdtuin
Achtertuin
Oppervlakte hoofdtuin
49 m2
Positie
Zuidwest
Achterom
Ja
Kwaliteit
Verzorgd
Schuur / Berging
Schuur
Vrijstaand steen
Garage
Geen garage
Voorzieningen
Voorzien van elektra
Parkeer faciliteiten
Openbaar parkeren
Voorzieningen
Voorzieningen
Mechanische ventilatie, TV kabel, Dakraam, Glasvezel kabel
Onderhoud
Permanente bewoning
Ja
Onderhoud binnen
Goed
Onderhoud buiten
Goed
Huidig gebruik
Woonruimte
Huidige bestemming
Woonruimte
Energie
Energieklasse
A
Energie einddatum
2 maart 2036
Warmwater
Stadsverwarming
Verwarming
Stadsverwarming
Gemeente
Gemeente
Almere

Foto's

Documenten

Interesse in deze woning?

Verkopen en benieuwd hoe wij werken?

Vraag ons boekje aan en plan een vrijblijvend gesprek!