Almere

Kiekendieflaan 6

Omschrijving

Op een schitterende plek in Almere-Hout gelegen helft van een dubbele villa op 669m2 eigen grond! Bijzonderheden: - Goed onderhouden 2-onder-1kapwoning - Gelegen in het groen in Vogelhorst; - Eigen oprit en parkeergarage; - Groene oase van rust; - Vrije ligging achterzijde, - Beschikt over 3 slaapkamers; - Beschikt over 2 badkamers; - Zonnige tuin en dakterras op het zuidoosten; - Niet zelf-bewoningsclausule van toepassing; - Oplevering kan snel. Let op, de genoemde prijs b...

Lees meer

Kenmerken

Status
Verkocht o.v.
Koopprijs
€ 745.000,- k.k.
Oppervlakte
122 m² / 670 m²
Bouwjaar
1997
Bekijk meer kenmerken

Omschrijving

Op een schitterende plek in Almere-Hout gelegen helft van een dubbele villa op 669m2 eigen grond!

Bijzonderheden:
- Goed onderhouden 2-onder-1kapwoning
- Gelegen in het groen in Vogelhorst;
- Eigen oprit en parkeergarage;
- Groene oase van rust;
- Vrije ligging achterzijde,
- Beschikt over 3 slaapkamers;
- Beschikt over 2 badkamers;
- Zonnige tuin en dakterras op het zuidoosten;
- Niet zelf-bewoningsclausule van toepassing;
- Oplevering kan snel.

Let op, de genoemde prijs betreft een bieden vanaf-prijs;

De Kiekendieflaan 6 ligt in een groene, rustige woonwijk waar kinderen veilig kunnen spelen en waar u nog écht kunt genieten van privacy en natuur. De wijk is ruim opgezet, met veel groenstroken, waterpartijen en wandelroutes. Vogels, bomen en rust bepalen hier de sfeer, terwijl u toch verrassend dicht bij alle voorzieningen woont.
Op korte afstand vindt u diverse scholen, kinderopvang, sportverenigingen en speeltuinen. Voor de dagelijkse boodschappen zijn supermarkten en buurtwinkels snel bereikbaar waaronder het winkelcentrum Oosterwold. Ook het centrum van Almere Stad, met een breed aanbod aan winkels, horeca, cultuur en uitgaansmogelijkheden, ligt op comfortabele fietsafstand.
Natuurliefhebbers zitten hier perfect: prachtige wandel- en fietsroutes, bossen, parken en recreatiegebieden liggen om de hoek. Of u nu graag een rondje maakt langs het water, de hond uitlaat of gewoon wilt genieten van een groene omgeving het kan hier allemaal. De bereikbaarheid is uitstekend. Via de nabijgelegen uitvalswegen bent u zo in Amsterdam, het Gooi, Utrecht of Lelystad. Ook het openbaar vervoer is goed geregeld, met busverbindingen en stations in de directe omgeving.

U parkeert de auto op de oprit, waar ruimte is voor 3/4 auto's, of in uw eigen inpandige garage.

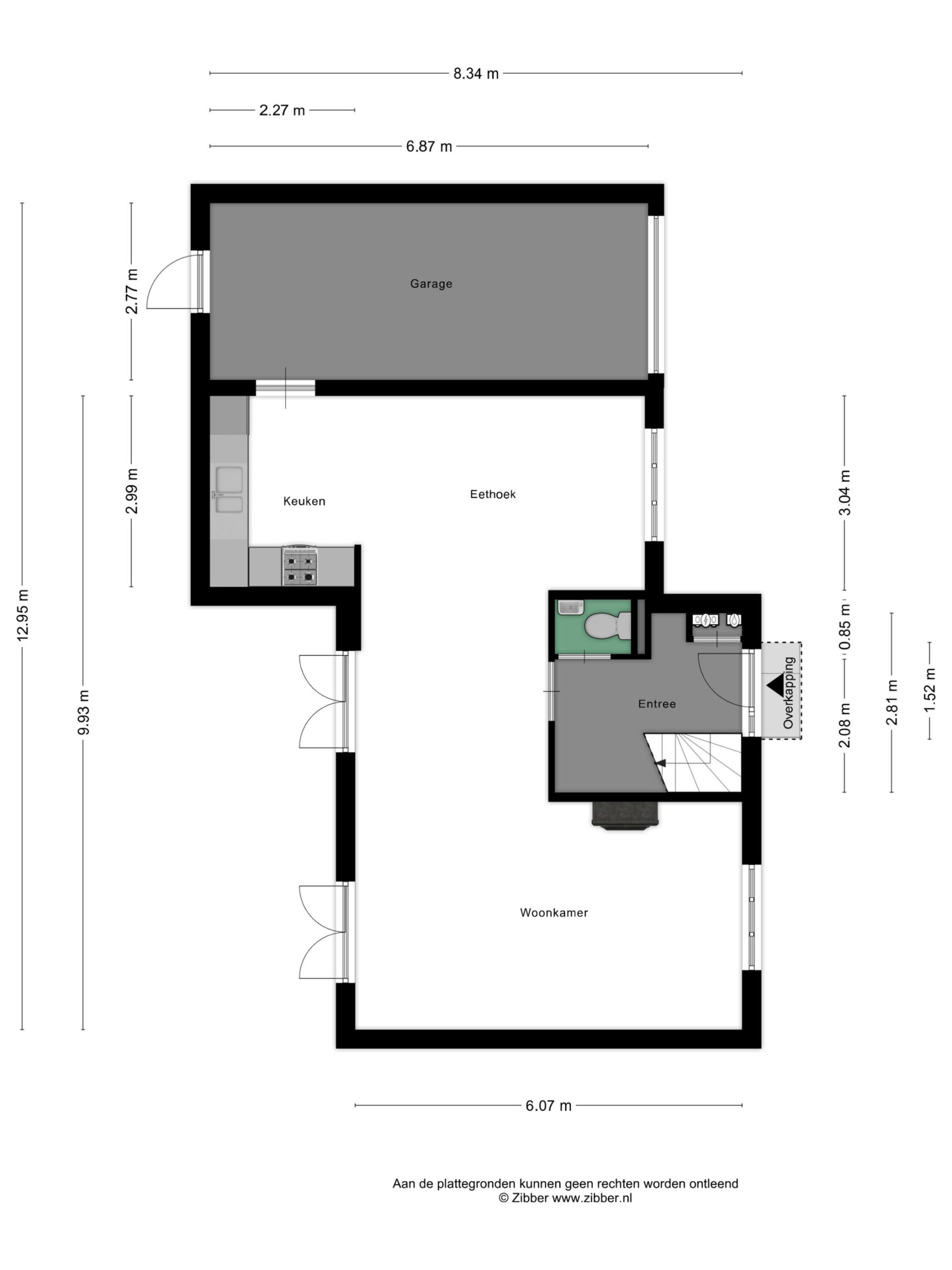
Begane grond
Stap binnen in de ruime hal met toilet, fonteintje en meterkast met glasvezel. Vanuit hier loopt u de lichte doorzonwoonkamer binnen: een fijne leefruimte met grote ramen, convectorput, sfeervolle gashaard en een praktisch ingedeelde zithoek aan de voorzijde. Aan de achterzijde openen dubbele deuren naar de tuin, waardoor binnen en buiten moeiteloos in elkaar overlopen.
Rechts van de woonkamer bevindt zich een royale plek voor de eethoek, grenzend aan de keuken. De keuken is uitgerust met alle gewenste inbouwapparatuur, waaronder koelkast, vriezer, oven, gasfornuis en een afzuigkap met afvoer naar buiten. Via de keuken bereikt u de inpandige garage met elektra en water, ideaal als klusruimte, berging of stalling, en een extra deur naar de achtertuin.

Eerste verdieping
De overloop leidt naar drie prettige slaapkamers, allemaal voorzien van een nette laminaatvloer. Aan de achterzijde vindt u een aparte wasruimte met aansluitingen voor wasmachine en droger. Daarnaast is er een separaat toilet, een vaste kast met de Intergas HRECO 36 (2014) CV-ketel en een badkamer met douche en wastafel.

Via een tussendeur bereikt u de ruime masterbedroom: een privéverblijf op zichzelf. Deze kamer beschikt over een eigen badkamer ensuite met ligbad en wastafel, én een heerlijk dakterras op het zuidoosten. Hier geniet u ’s ochtends van de zon, het uitzicht over de tuin en het rustige groen rondom het huis.

Vanaf de overloop is tevens de vliering bereikbaar: verrassend ruim, met stahoogte en volop opbergmogelijkheden. Hier bevinden zich ook het rookkanaal en de mechanische ventilatiebox.

Tuin
De achtertuin is een klein paradijs voor liefhebbers van groen. Rijk begroeid met bomen, bloemen en planten, voorzien van intieme zitplekjes en een vijver, voelt deze tuin als een privé-oase waar u het hele jaar door kunt genieten van buitenleven, vogels en rust. Dankzij de zij-om is de tuin tevens heel praktisch bereikbaar. De zonnige ligging op het zuidoosten maakt dit de ideale plek om van vroege ochtenden tot late avonden van de zon te genieten.

Alhoewel zorgvuldig samengesteld, kunnen er aan deze tekst geen rechten worden ontleend. Wij staan dan ook niet in voor de juistheid en volledigheid van de getoonde gegevens.

Overdracht
Status
Verkocht o.v.
Vraagprijs
€ 745.000,-
Aanvaarding
In overleg
Bouwvorm
Soort object
Woonhuis
Soort
Eengezinswoning
Soort dak
Samengesteld dak
Type woning
Twee onder één kapwoning
Bouwjaar
1997
Bouwvorm
Bestaande bouw
Ligging
Aan bosrand, Aan rustige weg, In woonwijk, Beschutte ligging
Oppervlaktes en inhoud
Woonoppervlakte
122 m2
Perceel oppervlakte
670 m2
Externe bergruimte
0 m2
Inhoud
536 m3
Aantal kamers
4
Aantal slaapkamers
3
Tuin
Tuinen
Achtertuin
Hoofdtuin
Achtertuin
Oppervlakte hoofdtuin
408 m2
Positie
Zuidoost
Achterom
Ja
Kwaliteit
Verzorgd
Schuur / Berging
Garage
Inpandig
Parkeer faciliteiten
Openbaar parkeren, Op eigen terrein
Voorzieningen
Voorzieningen
Mechanische ventilatie, Buitenzonwering, Rookkanaal
Onderhoud
Permanente bewoning
Ja
Onderhoud binnen
Goed
Onderhoud buiten
Goed
Huidig gebruik
Woonruimte
Huidige bestemming
Woonruimte
Energie
Energieklasse
B
Energie einddatum
5 november 2035
Warmwater
CV ketel
Verwarming
CV ketel, Gashaard
Bouwjaar
2014

Foto's

Documenten

Interesse in deze woning?

Verkopen en benieuwd hoe wij werken?

Vraag ons boekje aan en plan een vrijblijvend gesprek!